- Ron Tate, Broker,CRB,CRS,GRI,REALTOR ®,SFR
- By Referral Realty
- Mobile: 210.861.5730
- Office: 210.479.3948
- Fax: 210.479.3949
- rontate@taterealtypro.com
Property Photos

- MLS#: 1915316 ( Single Residential )
- Street Address: 189 Mustang Lane
- Viewed: 45
- Price: $725,000
- Price sqft: $285
- Waterfront: No
- Year Built: 2026
- Bldg sqft: 2544
- Bedrooms: 3
- Total Baths: 3
- Full Baths: 2
- 1/2 Baths: 1
- Garage / Parking Spaces: 3
- Days On Market: 71
- Acreage: 1.08 acres
- Additional Information
- Geolocation: 47.3818 / -122.246
- County: COMAL
- City: Spring Branch
- Zipcode: 78070
- Subdivision: Stallion Estates
- District: Comal
- Elementary School: Blanco
- Middle School: Blanco
- High School: Blanco
- Provided by: Preferred Partners Realty, LLC
- Contact: Stephen Johnson
- (210) 325-1833

- DMCA Notice
-
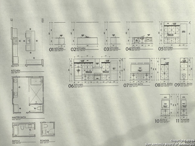
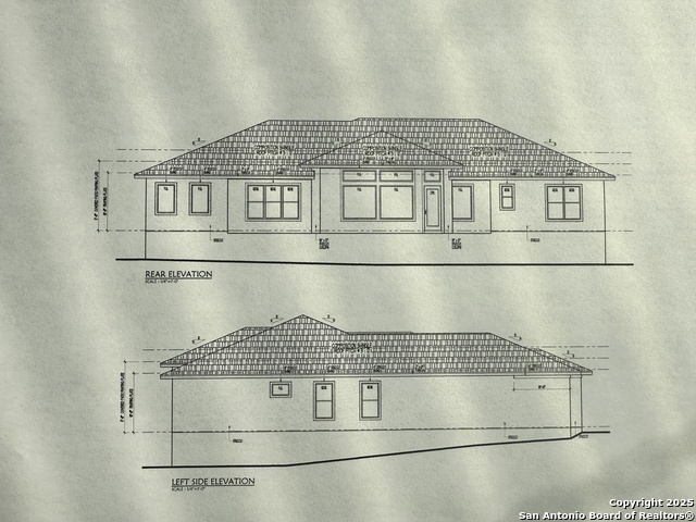
DescriptionWelcome home to the Hill Country! This 3 bedroom 1 Study / Office 2.5 bath and 3 car garage (2,544sqft) Y & JB Custom home is tucked into the heart of the gated neighborhood, Stallion Estates. Attention to detail is considered in this build, gorgeous steel and glass front door, a spacious primary suite built for relaxation complimenting a large walk in closet. This thoughtfully designed home brings the outdoors in from the moment you walk in, with high ceilings. The main living areas have an open concept, great for entertaining. The kitchen features custom cabinetry, electric range and a breakfast bar a pantry with cabinetry and Quartz countertops as well as ample storage. The half bath is set up for outdoor convenience, 3 car garage. The primary suite features a large walk in shower, a double vanity, and a walk in closet. The secondary bedrooms are on the opposite side of the home both have great natural light and plenty of space and guest bathroom between the additional bedrooms, upgraded fixtures, and a linen closet. The large back patio is the perfect place for a cup of coffee or to watch wildlife. This neighborhood is horse friendly.
Features
Possible Terms
- Conventional
- VA
- Seller Req/Qualify
- Cash
Air Conditioning
- One Central
Builder Name
- Y & JB Homes Master LLC
Construction
- New
Contract
- Exclusive Right To Sell
Days On Market
- 69
Currently Being Leased
- No
Dom
- 69
Elementary School
- Blanco
Energy Efficiency
- 12"+ Attic Insulation
- Double Pane Windows
- Radiant Barrier
- Low E Windows
- Ceiling Fans
Exterior Features
- Stucco
Fireplace
- Not Applicable
Floor
- Ceramic Tile
Foundation
- Slab
Garage Parking
- Three Car Garage
- Attached
Heating
- Central
- 1 Unit
Heating Fuel
- Electric
High School
- Blanco
Home Owners Association Fee
- 350
Home Owners Association Frequency
- Annually
Home Owners Association Mandatory
- Mandatory
Home Owners Association Name
- STALLION ESTATES POA
Home Faces
- East
Inclusions
- Ceiling Fans
- Washer Connection
- Dryer Connection
- Microwave Oven
- Stove/Range
- Disposal
- Dishwasher
- Ice Maker Connection
- Smoke Alarm
- Electric Water Heater
- Garage Door Opener
- Plumb for Water Softener
- Solid Counter Tops
- Custom Cabinets
- 2+ Water Heater Units
- Private Garbage Service
Instdir
- Hwy 281 N. to Stallion Estates Dr.
- Right on Fawn River Dr.
- Left on Thoroughbred Lane
- Left Mustang Lane. Lot is located at the corner of Mustang Lane and Shire Lane.
Interior Features
- One Living Area
- Liv/Din Combo
- Eat-In Kitchen
- Island Kitchen
- Breakfast Bar
- Walk-In Pantry
- Study/Library
- Utility Room Inside
- Secondary Bedroom Down
- High Ceilings
- Open Floor Plan
- Pull Down Storage
- Cable TV Available
- High Speed Internet
- All Bedrooms Downstairs
- Laundry Main Level
- Laundry Room
- Telephone
- Walk in Closets
- Attic - Pull Down Stairs
- Attic - Radiant Barrier Decking
Kitchen Length
- 14
Legal Desc Lot
- 185
Legal Description
- Stallion Estates 2
- Lot 185
Lot Description
- Corner
- County VIew
- 1 - 2 Acres
- Partially Wooded
- Mature Trees (ext feat)
- Secluded
Lot Dimensions
- F165xL337x213x212
Lot Improvements
- Street Paved
- Asphalt
Middle School
- Blanco
Miscellaneous
- Builder 10-Year Warranty
- Under Construction
- No City Tax
- Cluster Mail Box
Multiple HOA
- No
Neighborhood Amenities
- Controlled Access
- Bridle Path
Occupancy
- Vacant
Other Structures
- None
Owner Lrealreb
- No
Ph To Show
- 210-222-2227
Possession
- Closing/Funding
Property Type
- Single Residential
Roof
- Heavy Composition
School District
- Comal
Source Sqft
- Appsl Dist
Style
- One Story
- Contemporary
Total Tax
- 1357.47
Utility Supplier Elec
- PEC
Utility Supplier Grbge
- Private
Utility Supplier Other
- GVTC
Utility Supplier Sewer
- Septic
Utility Supplier Water
- Texas Water
Views
- 45
Water/Sewer
- Water System
- Aerobic Septic
Window Coverings
- None Remain
Year Built
- 2026
Property Location and Similar Properties