- Ron Tate, Broker,CRB,CRS,GRI,REALTOR ®,SFR
- By Referral Realty
- Mobile: 210.861.5730
- Office: 210.479.3948
- Fax: 210.479.3949
- rontate@taterealtypro.com
Property Photos

- MLS#: 1926595 ( Single Residential )
- Street Address: 956 Petite Verdot
- Viewed: 2
- Price: $1,250,000
- Price sqft: $338
- Waterfront: No
- Year Built: 2025
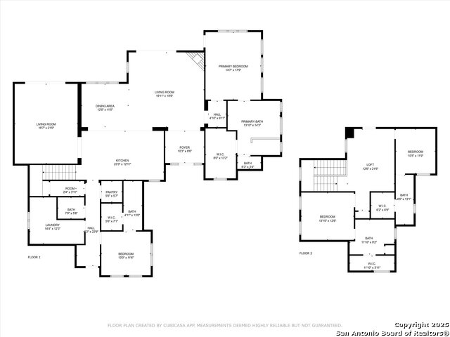
- Bldg sqft: 3702
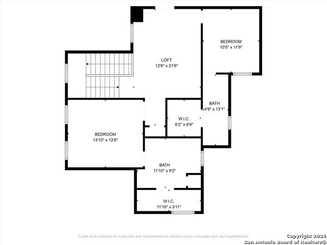
- Bedrooms: 4
- Total Baths: 5
- Full Baths: 4
- 1/2 Baths: 1
- Garage / Parking Spaces: 3
- Days On Market: 5
- Acreage: 1.32 acres
- Additional Information
- County: COMAL
- City: New Braunfels
- Zipcode: 78132
- Subdivision: Vintage Oaks
- District: Comal
- Elementary School: Bill Brown
- Middle School: Smiton Valley
- High School: Smiton Valley
- Provided by: Shires Buck Realty
- Contact: Cody Flinn
- (210) 853-6888

- DMCA Notice
-
Description***OPEN HOUSE SUNDAY DECEMBER 7 1 4pm*** Step into this never lived in, brand new, 3,702 sq ft custom built masterpiece nestled on 1.32 private acres in the heart of Texas Hill Country. Designed for those who appreciate both sophistication and comfort, this 4 bedroom, 4.5 bathroom residence offers refined interiors and expansive Hill Country views from nearly every room thanks to the tempered glass casement windows. Each bedroom features its own en suite bath, creating private retreats for family and guests alike. The heart of the home is an open concept living space with soaring ceilings, upscale finishes, and seamless indoor outdoor flow. The gourmet kitchen is outfitted with premium appliances and transitions effortlessly into the expansive outdoor kitchen and covered patio perfect for entertaining or relaxing under the Texas sky. Step outside to your resort style backyard featuring a sparkling pool and hot tub, controllable via your phone, and plenty of space to soak in the panoramic surroundings. A spacious 3 car garage provides room for toys and tools, while the gated neighborhood and quiet cul de sac location adds extra privacy. A three zone electric heat pump and spray foam insulation will keep you and your bills cool! Whether you're entertaining guests or enjoying a peaceful evening at home, this brand new home blends luxury, style, and tranquility in one of the most desirable communities in New Braunfels with world class amenities! Schedule your private tour and experience the beauty for yourself this is Hill Country living at its finest.
Features
Possible Terms
- Conventional
- VA
- Cash
Air Conditioning
- Heat Pump
Builder Name
- CUSTOM CONTRACTING
Construction
- New
Contract
- Exclusive Right To Sell
Currently Being Leased
- No
Elementary School
- Bill Brown
Exterior Features
- 4 Sides Masonry
- Stone/Rock
- Wood
- Stucco
Fireplace
- Living Room
Floor
- Carpeting
- Ceramic Tile
- Vinyl
Foundation
- Slab
Garage Parking
- Three Car Garage
Heating
- Heat Pump
- 3+ Units
Heating Fuel
- Electric
High School
- Smithson Valley
Home Owners Association Fee
- 116
Home Owners Association Frequency
- Monthly
Home Owners Association Mandatory
- Mandatory
Home Owners Association Name
- THE NEIGHBORHOOD COMPANY
Inclusions
- Ceiling Fans
- Chandelier
- Washer Connection
- Dryer Connection
- Built-In Oven
- Gas Grill
- Dishwasher
- Double Ovens
Instdir
- From I-35
- take exit 184 and head West. Take exit to HWY 46 and turn left onto HWY 46. Keep going until you reach Vintage Oaks on the right. Make a right onto Bordeaux Lane then right onto Petite Verdot.
Interior Features
- Two Living Area
- Island Kitchen
- Walk-In Pantry
- Study/Library
- Game Room
- Media Room
- Loft
- Utility Room Inside
- Secondary Bedroom Down
- High Ceilings
- Open Floor Plan
- Laundry Main Level
- Walk in Closets
Kitchen Length
- 23
Legal Desc Lot
- 54
Legal Description
- Vintage Oaks At The Vineyard 1
- Lot 54
Middle School
- Smithson Valley
Multiple HOA
- No
Neighborhood Amenities
- Controlled Access
- Pool
- Tennis
- Clubhouse
- Park/Playground
- Jogging Trails
- Sports Court
- BBQ/Grill
- Basketball Court
- Volleyball Court
Occupancy
- Vacant
Owner Lrealreb
- No
Ph To Show
- 210-222-2227
Possession
- Closing/Funding
Property Type
- Single Residential
Roof
- Metal
School District
- Comal
Source Sqft
- Appsl Dist
Style
- Two Story
- Texas Hill Country
Total Tax
- 12617
Utility Supplier Elec
- NBU
Utility Supplier Grbge
- Best Waste
Utility Supplier Other
- GVTC
Utility Supplier Water
- TWC
Water/Sewer
- Septic
Window Coverings
- All Remain
Year Built
- 2025
Property Location and Similar Properties