- Ron Tate, Broker,CRB,CRS,GRI,REALTOR ®,SFR
- By Referral Realty
- Mobile: 210.861.5730
- Office: 210.479.3948
- Fax: 210.479.3949
- rontate@taterealtypro.com
Property Photos

- MLS#: 1923051 ( Commercial Improved Prop )
- Street Address: 1500 Fredericksburg Rd
- Viewed: 3
- Price: $1,250
- Price sqft: $0
- Waterfront: No
- Year Built: 1960
- Bldg sqft: 5803
- Days On Market: 41
- Additional Information
- County: BEXAR
- City: San Antonio
- Zipcode: 78201
- District: CALL DISTRICT
- Provided by: Uriah Real Estate Organization
- Contact: Sanjeev Jawanda
- (210) 316-0344

- DMCA Notice
-
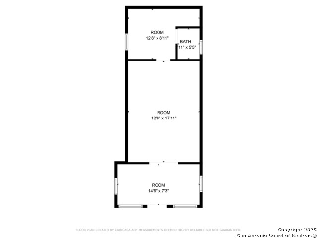
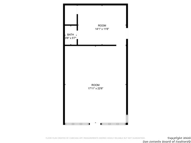
DescriptionWelcome to 1500 Fredericksburg Rd, a contemporary, renovated retail center now offering three prime lease ready units sized between 450 SF and 585 SF. Designed for flexibility, each space features updated interiors, modern storefront finishes, and layouts well suited to retail, office, or service based tenants. Strategically located just minutes from Interstate 10, the center benefits from exceptional accessibility and high visibility. With its C 2NA (Commercial, Non Alcohol) zoning, the property accommodates a wide range of commercial uses including general retail, professional offices, beauty and wellness services, restaurants without alcohol, specialty shops, and more making it ideal for businesses seeking a strong local presence in a walkable, high traffic area. Three fully renovated units (450 SF 585 SF) Excellent exposure and accessibility just off I 10 C 2NA zoning, permitting a wide range of commercial uses (general retail, offices, salons, wellness services, restaurants without alcohol, specialty shops, etc.) Move in ready interiors with refreshed storefronts and modern finishes
Features
Possible Terms
- Lease Only
Apprx Age
- 65
Available W Lease
- Yes
Buildingcenter Name
- 1500 FREDERICKSBURG RD
Ceiling Height
- 12
Construction
- Wood
- Stone
- Metal
Contract
- Exclusive Agency
Days On Market
- 38
Dom
- 38
Existing Exmptabatements
- No
Flood Plain
- None
Instdir
- Located just minutes from I-10
- the property sits along Fredericksburg Rd near the Medical Center. Easily accessible from Loop 410 or I-10
- head south on Fredericksburg Rd and the center will be on your right.
Legal Description
- NCB 2743 BLK 49 LOT 2 THRU 5
Loading Facilities
- None
Num Total Parking
- 15
Other Tax
- 1576
Owner Lrealreb
- No
Ph To Show
- 2103160344
Property Type
- Commercial Improved Prop
Rail Service
- No
Restrictions
- Other
- None
Roof
- Wood Shingle/Shake
- Other
Sale Includes
- Buildings
School District
- CALL DISTRICT
School Tax
- 6978
Total Tax
- 13056
Utilities
- Electricity
- Water
- Sewer
Year Built
- 1960
Zoning
- C-2NA
Property Location and Similar Properties