- Ron Tate, Broker,CRB,CRS,GRI,REALTOR ®,SFR
- By Referral Realty
- Mobile: 210.861.5730
- Office: 210.479.3948
- Fax: 210.479.3949
- rontate@taterealtypro.com
Property Photos

- MLS#: 1919728 ( Single Residential )
- Street Address: 3816 Northaven
- Viewed: 12
- Price: $300,000
- Price sqft: $148
- Waterfront: No
- Year Built: 2025
- Bldg sqft: 2024
- Bedrooms: 4
- Total Baths: 3
- Full Baths: 3
- Garage / Parking Spaces: 2
- Days On Market: 9
- Additional Information
- County: COMAL
- City: New Braunfels
- Zipcode: 78132
- Subdivision: Steelwood Trail
- District: Comal
- Elementary School: Morningside
- Middle School: Danville
- High School: Davenport
- Provided by: Marti Realty Group
- Contact: Christopher Marti
- (210) 660-1098

- DMCA Notice
-
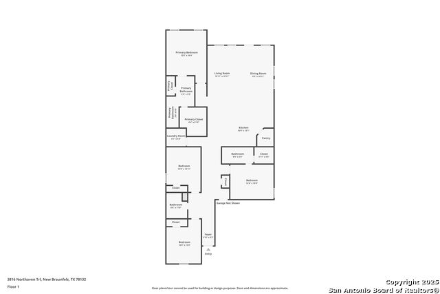
Description**Open House this Saturday, 11/8 from 1 4pm** The Clearwater This new single level home is host to an inviting open concept floorplan with convenient access to a covered patio, ready for seamless entertaining and multitasking. Three secondary bedrooms are located off the foyer, with the luxe owner's suite tucked into a private rear corner, complete with a spa inspired bathroom and walk in closet. Prices and features may vary and are subject to change. Photos are for illustrative purposes only. * Seller is willing to assist with closing costs or a rate buy down through preferred lender with an acceptable offer.
Features
Possible Terms
- Conventional
- VA
- Cash
Air Conditioning
- One Central
Block
- 22
Builder Name
- Lennar
Construction
- New
Contract
- Exclusive Right To Sell
Elementary School
- Morningside
Exterior Features
- Brick
- Siding
Fireplace
- Not Applicable
Floor
- Carpeting
- Vinyl
Foundation
- Slab
Garage Parking
- Two Car Garage
Heating
- Central
Heating Fuel
- Electric
High School
- Davenport
Home Owners Association Fee
- 112.5
Home Owners Association Frequency
- Semi-Annually
Home Owners Association Mandatory
- Mandatory
Home Owners Association Name
- ALAMO MANAGEMENT GROUP
Inclusions
- Washer Connection
- Dryer Connection
- Stove/Range
- Dishwasher
Instdir
- Follow I-35 N to I 35 N Frontage Rd/S Interstate 35 Frontage Rd in New Braunfels. Take exit 183 from I-35 N toward Solms Rd. Follow S Solms Rd
- Morningside Dr and Ron Rd to Opossum Trl.
Interior Features
- One Living Area
- Utility Room Inside
- Open Floor Plan
- All Bedrooms Downstairs
- Laundry Main Level
- Walk in Closets
Kitchen Length
- 16
Legal Description
- Steelwood Trail 3
- Block 22
- Lot 4
Middle School
- Danville Middle School
Multiple HOA
- No
Neighborhood Amenities
- Other - See Remarks
Owner Lrealreb
- No
Ph To Show
- 210-222-2227
Possession
- Closing/Funding
Property Type
- Single Residential
Roof
- Composition
School District
- Comal
Source Sqft
- Bldr Plans
Style
- One Story
Views
- 12
Virtual Tour Url
- https://www.zillow.com/view-imx/b7eb61d7-3da3-4dfa-8c19-39a5b9579e91?wl=true&setAttribution=mls&initialViewType=pano
Water/Sewer
- City
Window Coverings
- None Remain
Year Built
- 2025
Property Location and Similar Properties