- Ron Tate, Broker,CRB,CRS,GRI,REALTOR ®,SFR
- By Referral Realty
- Mobile: 210.861.5730
- Office: 210.479.3948
- Fax: 210.479.3949
- rontate@taterealtypro.com
Property Photos

- MLS#: 1912684 ( Single Residential )
- Street Address: 724 Horsetail Ln
- Viewed: 8
- Price: $260,000
- Price sqft: $159
- Waterfront: No
- Year Built: 2024
- Bldg sqft: 1634
- Bedrooms: 3
- Total Baths: 2
- Full Baths: 2
- Garage / Parking Spaces: 2
- Days On Market: 37
- Additional Information
- County: COMAL
- City: New Braunfels
- Zipcode: 78132
- Subdivision: Steelwood Trails
- District: Comal
- Elementary School: Morningside
- Middle School: Danville
- High School: Davenport
- Provided by: Marti Realty Group
- Contact: Christopher Marti
- (210) 660-1098

- DMCA Notice
-
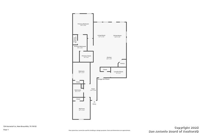
Description**Open House this Saturday, 11/8 from 1 4pm** The Carmel This new single level home provides ample space to live and grow. An open concept floorplan combines the kitchen, dining area and family room, with convenient access to a covered patio for seamless entertaining and relaxation. Two secondary bedrooms can be found off the foyer, and the luxe owner's suite is tucked away into a private corner at the back of the home, offering direct access to an en suite bathroom and roomy walk in closet. *Seller is willing to assist with closing costs or a rate buy down through preferred lender with an acceptable offer.
Features
Possible Terms
- Conventional
- VA
- TX Vet
- Cash
Air Conditioning
- One Central
Block
- 23
Builder Name
- Lennar
Construction
- New
Contract
- Exclusive Right To Sell
Days On Market
- 34
Dom
- 34
Elementary School
- Morningside
Exterior Features
- Cement Fiber
Fireplace
- Not Applicable
Floor
- Carpeting
- Vinyl
Foundation
- Slab
Garage Parking
- Two Car Garage
Heating
- Central
Heating Fuel
- Electric
- Natural Gas
High School
- Davenport
Home Owners Association Fee
- 112.5
Home Owners Association Frequency
- Semi-Annually
Home Owners Association Mandatory
- Mandatory
Home Owners Association Name
- ALAMO MANAGEMENT GROUP
Inclusions
- Washer Connection
- Dryer Connection
- Stove/Range
- Dishwasher
Instdir
- Follow I-35 N to I 35 N Frontage Rd/S Interstate 35 Frontage Rd in New Braunfels. Take exit 183 from I-35 N toward Solms Rd. Follow S Solms Rd
- Morningside Dr and Ron Rd to Opossum Trl.
Interior Features
- One Living Area
- Island Kitchen
- Breakfast Bar
- Walk-In Pantry
- Utility Room Inside
- Open Floor Plan
- Cable TV Available
- Laundry Main Level
- Walk in Closets
Kitchen Length
- 16
Legal Desc Lot
- 05
Legal Description
- Block 23 Lot 05
Middle School
- Danville Middle School
Multiple HOA
- No
Neighborhood Amenities
- Other - See Remarks
Owner Lrealreb
- No
Ph To Show
- 210-222-2227
Possession
- Closing/Funding
Property Type
- Single Residential
Roof
- Composition
School District
- Comal
Source Sqft
- Appsl Dist
Style
- One Story
Total Tax
- 1.61
Virtual Tour Url
- https://www.zillow.com/view-imx/16460276-4ffc-40f0-8f28-07da03aba4bc?wl=true&setAttribution=mls&initialViewType=pano
Water/Sewer
- Water System
- Sewer System
Window Coverings
- None Remain
Year Built
- 2024
Property Location and Similar Properties