
- Ron Tate, Broker,CRB,CRS,GRI,REALTOR ®,SFR
- By Referral Realty
- Mobile: 210.861.5730
- Office: 210.479.3948
- Fax: 210.479.3949
- rontate@taterealtypro.com
Property Photos




















- MLS#: 1911983 ( Commercial Land/Unimprvd )
- Street Address: 00 Bexar St
- Viewed: 10
- Price: $850,000
- Price sqft: $0
- Waterfront: No
- Year Built: Not Available
- Bldg sqft: 0
- Days On Market: 20
- Acreage: 4.75 acres
- Additional Information
- County: MEDINA
- City: LaCoste
- Zipcode: 78039
- Provided by: Keller Williams City-View
- Contact: Shannon Beasley Richardson
- (210) 288-1971
- DMCA Notice
-
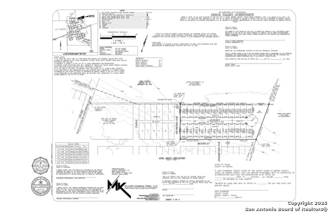
DescriptionPrime Development Opportunity in LaCoste, TX! Discover 24 platted and approved lots located within the city limits of LaCoste, offering a rare chance for immediate development. With the groundwork already completed, these lots save valuable time and expense, making this property an ideal investment for builders and developers. LaCoste is a growing community that continues to maintain its small town charm, while offering convenient access to San Antonio and the surrounding area. The property is positioned within the highly regarded Medina Valley ISD, a sought after district known for strong academics and community involvement. Potential access to city utilities adds to the long term value and ease of development, allowing you to bring your vision to life with less upfront hassle. Whether you're looking to build out a residential neighborhood or hold for future growth, this opportunity stands out in today's market.
Features
Possible Terms
- Cash
- Conventional
Agricultural
- No
Available W Lease
- No
Contract
- Exclusive Right To Sell
Easements
- None
Flood Plain
- None
Front Footage
- 653
Instdir
- 471 S toward LaCoste
- take CR 585 to Bexar St
- property is at the end of the street on the north side.
Land Acres
- 4.75
Land Sqft
- 206910
Legal Description
- 4.75 +/- ac out of
Mineral Oil Gas Rights
- None
Other
- No
Other Tax
- 143
Owner Lrealreb
- No
Ph To Show
- 210.288.1971
Zoned
- Vacant
Property Type
- Commercial Land/Unimprvd
Rail Service
- No
Restrictions
- Other
Salerent
- For Sale
School Tax
- 521
Total Tax
- 1089
Utilities Available
- Electricity
Utilities On Site
- None
Views
- 10
Zoning
- VACANT
Property Location and Similar Properties