
- Ron Tate, Broker,CRB,CRS,GRI,REALTOR ®,SFR
- By Referral Realty
- Mobile: 210.861.5730
- Office: 210.479.3948
- Fax: 210.479.3949
- rontate@taterealtypro.com
Property Photos







- MLS#: 1907999 ( Single Residential )
- Street Address: 9331 Birch Bark Bend
- Viewed: 4
- Price: $269,850
- Price sqft: $120
- Waterfront: No
- Year Built: 2025
- Bldg sqft: 2245
- Bedrooms: 3
- Total Baths: 3
- Full Baths: 2
- 1/2 Baths: 1
- Garage / Parking Spaces: 2
- Days On Market: 36
- Additional Information
- County: BEXAR
- City: San Antonio
- Zipcode: 78221
- Subdivision: The Granary
- District: Harlandale I.S.D
- Elementary School: Schulze
- Middle School: Kingsborough
- High School: Mccollum
- Provided by: SATEX Properties, Inc.
- Contact: Joe Acosta
- (210) 744-7253
- DMCA Notice
-
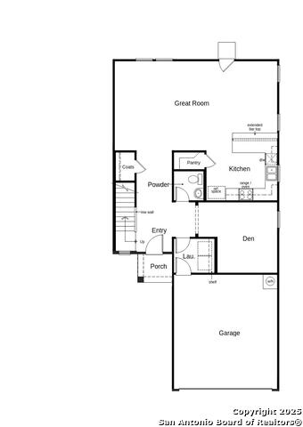
DescriptionStep into style with 9 ft. first floor ceilings and thoughtfully selected finishes throughout. The kitchen offers Whirlpool stainless steel appliances, Woodmont Cody 42 in. upper cabinets, a Daltile tile backsplash, extended breakfast bar, and granite countertops in Arctic Pearl. Relax in the primary bath featuring upgraded cabinets and a 42 in. garden tub/shower with Daltile tile surround. Decorative highlights include a Carrara style entry door, Kwikset Polo knob interior hardware, and Stone Theory ceramic tile flooring in the bathrooms, kitchen, and great room. Additional perks include a wireless security system, fully sodded yard, and an automatic sprinkler system for easy outdoor maintenance.
Features
Possible Terms
- Conventional
- FHA
- VA
- TX Vet
- Cash
Air Conditioning
- One Central
Block
- 022
Builder Name
- KB Home
Construction
- New
Contract
- Exclusive Right To Sell
Days On Market
- 32
Dom
- 32
Elementary School
- Schulze
Exterior Features
- Cement Fiber
Fireplace
- Not Applicable
Floor
- Ceramic Tile
Foundation
- Slab
Garage Parking
- Two Car Garage
Green Certifications
- Energy Star Certified
Heating
- Central
Heating Fuel
- Electric
High School
- Mccollum
Home Owners Association Fee
- 450
Home Owners Association Frequency
- Annually
Home Owners Association Mandatory
- Mandatory
Home Owners Association Name
- THE GRANARY
Inclusions
- Washer Connection
- Dryer Connection
Instdir
- From SE Loop 410 West
- take Exit 44. Continue straight for 2.1 mi. on access road and turn right on Hammerstone Dr. OR: From SE Loop 410 East
- take Exit 44. Take the turnaround and continue for 1 mi. on access road. Turn right on Hammerstone Dr.
Kitchen Length
- 12
Legal Desc Lot
- 14-2
Legal Description
- NCB 11156 (HARLANDALE UT-2)
- BLOCK 14 LOT 22
Middle School
- Kingsborough
Miscellaneous
- Builder 10-Year Warranty
Multiple HOA
- No
Neighborhood Amenities
- Pool
- Park/Playground
Owner Lrealreb
- No
Ph To Show
- 210-222-2227
Possession
- Closing/Funding
Property Type
- Single Residential
Roof
- Composition
School District
- Harlandale I.S.D
Source Sqft
- Bldr Plans
Style
- Two Story
Total Tax
- 724.58
Water/Sewer
- Water System
- Sewer System
Window Coverings
- None Remain
Year Built
- 2025
Property Location and Similar Properties