- Ron Tate, Broker,CRB,CRS,GRI,REALTOR ®,SFR
- By Referral Realty
- Mobile: 210.861.5730
- Office: 210.479.3948
- Fax: 210.479.3949
- rontate@taterealtypro.com
Property Photos

- MLS#: 1897500 ( Single Residential )
- Street Address: 5635 Timber Star
- Viewed: 59
- Price: $290,000
- Price sqft: $147
- Waterfront: No
- Year Built: 1986
- Bldg sqft: 1967
- Bedrooms: 4
- Total Baths: 3
- Full Baths: 2
- 1/2 Baths: 1
- Garage / Parking Spaces: 2
- Days On Market: 118
- Additional Information
- County: BEXAR
- City: San Antonio
- Zipcode: 78250
- Subdivision: Great Northwest
- District: Northside
- Elementary School: Timberwilde
- Middle School: Connally
- High School: Warren
- Provided by: Orchard Brokerage
- Contact: Gracie Garcia
- (361) 281-1943

- DMCA Notice
-
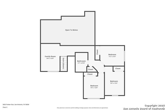
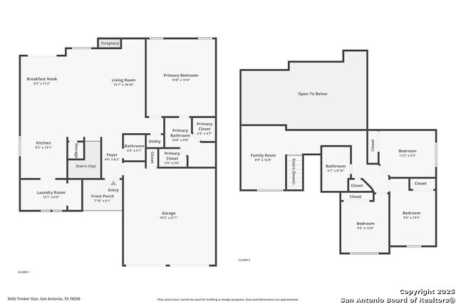
DescriptionThis beautifully recently remodel home is filled with natural light and features mature shade trees, high ceilings, and an inviting open floor plan and fully updated. The seamless flow connects the dining area, kitchen, and living room, complete with a cozy wood burning fireplace. The kitchen includes a breakfast bar, while the private backyard offers a patio and privacy fence perfect for relaxing or entertaining. Conveniently located near shopping, dining, and daily amenities. Click the Virtual Tour link to view the 3D walkthrough. Discounted rate options and no lender fee future refinancing may be available for qualified buyers of this home. Seller is offering a 1 YEAR WARRANTY. Let's not forget the new AC only 4 months old. Seller is motivated Bring all offers!
Features
Possible Terms
- Conventional
- FHA
- VA
- Cash
Air Conditioning
- One Central
Apprx Age
- 39
Block
- 57
Builder Name
- Unknown
Construction
- Pre-Owned
Contract
- Exclusive Right To Sell
Days On Market
- 111
Dom
- 111
Elementary School
- Timberwilde
Exterior Features
- Wood
Fireplace
- One
- Living Room
- Wood Burning
Floor
- Carpeting
- Laminate
Foundation
- Slab
Garage Parking
- Two Car Garage
- Attached
Heating
- Central
Heating Fuel
- Electric
High School
- Warren
Home Owners Association Fee
- 308
Home Owners Association Frequency
- Annually
Home Owners Association Mandatory
- Mandatory
Home Owners Association Name
- GREAT NORTHWEST COMMUNITY IMPROVEMENT ASSOCIATION
Inclusions
- Ceiling Fans
- Chandelier
- Washer Connection
- Dryer Connection
- Microwave Oven
- Stove/Range
- Refrigerator
- Dishwasher
Instdir
- From Tezel Rd
- turn right onto Timber Ranch Rd. Turn right onto Timber Star and the home is on the right.
Interior Features
- One Living Area
- Liv/Din Combo
- Breakfast Bar
- Utility Room Inside
- High Ceilings
- Open Floor Plan
- Cable TV Available
- Laundry Main Level
- Laundry Room
- Walk in Closets
Legal Desc Lot
- 41
Legal Description
- Ncb 18757 Blk 57 Lot 41 (Great Northwest Ut-43B) "Great Nw A
Lot Description
- Mature Trees (ext feat)
Middle School
- Connally
Multiple HOA
- No
Neighborhood Amenities
- Pool
- Tennis
- Clubhouse
- Park/Playground
- Sports Court
- Basketball Court
- Volleyball Court
Owner Lrealreb
- No
Ph To Show
- 800-746-9464
Possession
- Closing/Funding
Property Type
- Single Residential
Roof
- Composition
School District
- Northside
Source Sqft
- Appsl Dist
Style
- Two Story
Total Tax
- 4682.76
Views
- 59
Virtual Tour Url
- https://www.zillow.com/view-imx/7b0b0573-dc2b-40b7-8d06-16c7152706bb?setAttribution=mls&wl=true&initialViewType=pano&utm_source=dashboard
Water/Sewer
- Water System
- Sewer System
Window Coverings
- All Remain
Year Built
- 1986
Property Location and Similar Properties