
- Ron Tate, Broker,CRB,CRS,GRI,REALTOR ®,SFR
- By Referral Realty
- Mobile: 210.861.5730
- Office: 210.479.3948
- Fax: 210.479.3949
- rontate@taterealtypro.com
Property Photos






- MLS#: 1868933 ( Land )
- Street Address: 106 Boudet Pl
- Viewed: 16
- Price: $50,000
- Price sqft: $0
- Waterfront: No
- Year Built: Not Available
- Bldg sqft: 0
- Days On Market: 145
- Additional Information
- County: BEXAR
- City: San Antonio
- Zipcode: 78203
- Subdivision: Denver Heights East Of New Bra
- District: San Antonio I.S.D.
- Elementary School: Smith
- Middle School: Poe
- High School: lands
- Provided by: Keller Williams Legacy
- Contact: Michelle Castillo
- (210) 748-8456
- DMCA Notice
-
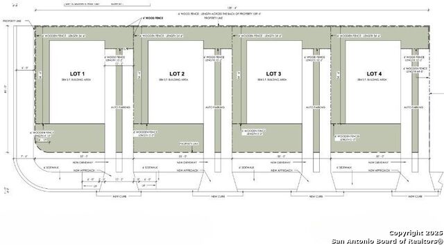
DescriptionIncredible opportunity to build in a rapidly growing San Antonio neighborhood just minutes from downtown, the Alamodome, St. Philip's College, and the AT&T Center. This individual 1,575 sq. ft. lot part of a fully subdivided four lot development comes with everything needed to begin construction immediately. Each lot has city approved civil construction drawings, sanitary sewer plans, and rezoning completed (IDZ C) allowing for one dwelling unit per lot, meaning the time consuming and expensive groundwork has already been taken care of. The included site plan and approved building plans feature a thoughtfully designed two story home offering 1,122 sq. ft. of living space and a covered front porch, ideal for rental income, resale, or personal use. This area is experiencing a wave of revitalization with new housing, infrastructure improvements, and proximity to major job centers and cultural destinations. With a straightforward permitting path and utilities in place per city guidelines, this is a turnkey lot perfect for new builders or seasoned developers alike. Whether purchasing one lot or assembling multiple parcels for a larger project, this is your chance to stake your claim in an urban neighborhood with momentum. Don't miss out on this high potential investment in San Antonio's Eastside corridor.
Features
Possible Terms
- Cash
Contract
- Exclusive Right To Sell
Days On Market
- 141
Depth Feet
- 47
Description
- Undeveloped
- Improved
- Partial Cleared
Dom
- 141
Elementary School
- Smith
Front Footage
- 35
Frontage
- City Street
High School
- Highlands
Home Owners Association Mandatory
- None
Improvements
- Paved Roads
- Curbs/Gutters
- City Street
Instdir
- From US-281 South
- take the exit toward E Houston St/St. Paul Square and turn left onto E Houston Street. Continue straight and turn right onto S Cherry Street. Turn left onto Montana Street
- then turn right onto Boudet Place. The destination
- 106 Boudet
Legal Desc Lot
- 19
Legal Description
- NCB 1527 BLK 3 LOT 19
Location
- Corner
Middle School
- Poe
Owner Lrealreb
- No
Ph To Show
- 2102222227
Property Type
- Land
Restrictions
- No Mobile Homes
- No Mnfct Homes
- Not Applicable/None
School District
- San Antonio I.S.D.
School Tax
- 215.89
Septic System
- Not Applicable
Site Area Features
- None
Terrain
- Level
Total Tax
- 368.73
Trees
- Few
- Mature
Utilities Available
- Water System
- Natural Gas
- Electric
Utilities On Site
- Electric
Utility Supplier Elec
- CPS
Utility Supplier Gas
- CPS
Utility Supplier Grbge
- CPS
Utility Supplier Sewer
- SAWS
Utility Supplier Water
- SAWS
Views
- 16
Zoning
- IDZ-2
Property Location and Similar Properties